Contact us
Phone Icon
Marlborough Homes - Logo
Marlborough Homes Submark Logo
  • Home
  • Design and Build
  • House and Land
  • Turn Key Packages
  • Floorplans
  • Subdivision and Development
  • Our Process
  • About Us
  • Contact Us

Phone 027 573 1076

Email admin@marlboroughhomes.co.nz

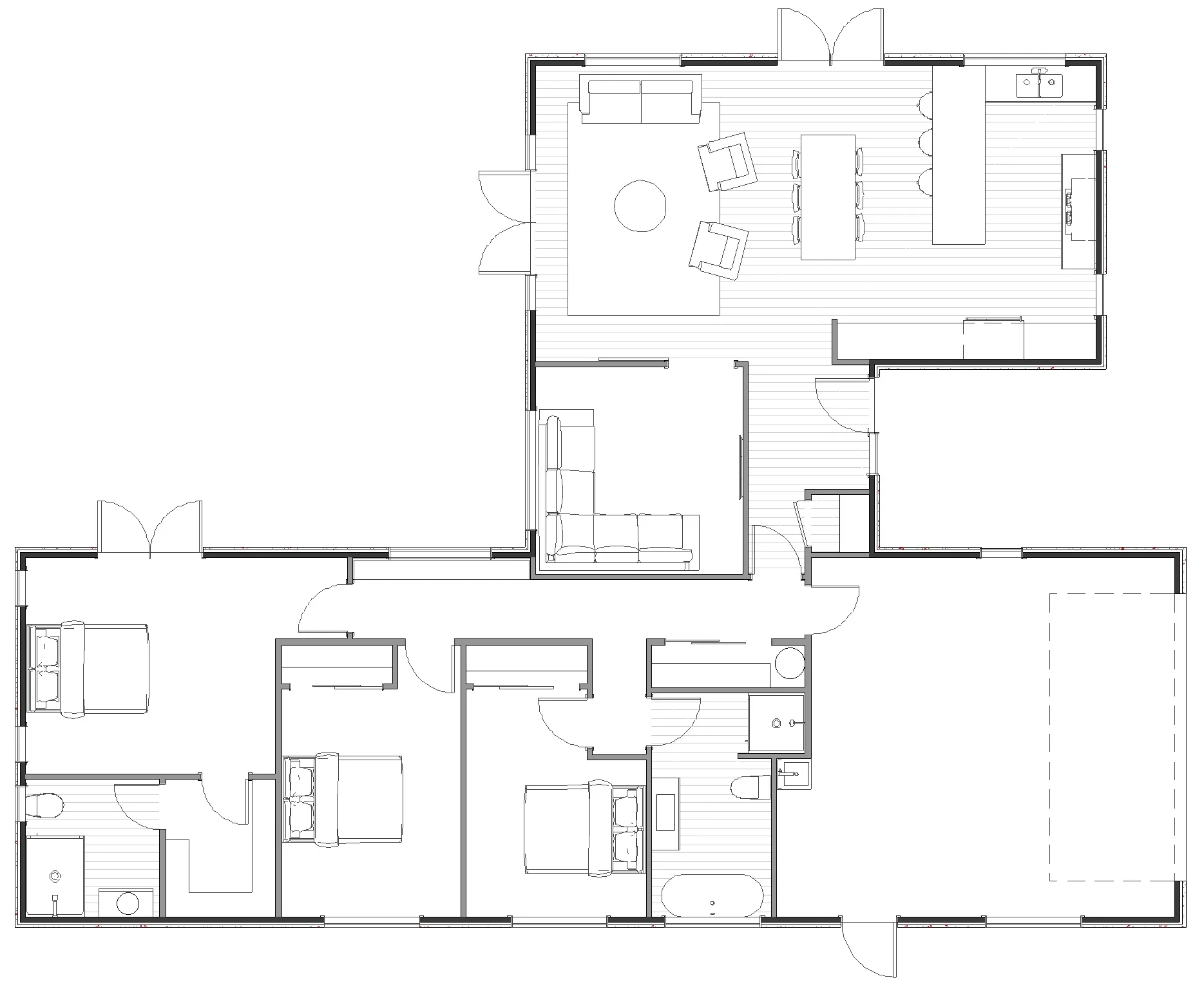
Maxwell Floorplan

Maxwell Floorplan by Marlborough Homes
© 2026 

All Rights Reserved - Marlborough Homes | Site Design